Campus Konzept Mainaschaff

In der Übersicht
Art
Multifunktionsgebäude
Grundstücksfläche
6.643 m²
Grundfläche
2.188 m²
Mietflächen
5.640 m²
Fertigstellung
November 2027

Das multifunktionale Campus-Konzept richtet sich als lebendiger Ort an zukunftsgewandte Mieter und Nutzer. Als neues Projekt für die Region Aschaffenburg setzt MAIN COURT auf ein innovatives Nutzungskonzept, das erstmals verschiedene Funktionen und Lebensbereiche in einem Gebäude vereint.

Gastronomie- & Eventflächen
650 m²
Ladenflächen
1.550 m²
Praxisflächen
1.325 m²
Büroflächen
2.125 m²

Flächen & Nutzung

Konkret entstehen flexible Flächen für Retail, Gesundheitsdienstleistungen, Sportangebote und Gastronomie ebenso wie moderne Büroflächen und zeitgemäße Co-Working-Spaces. Vom Eintracht Frankfurt Fanshop über Food Court und Gastronomiekonzepte bis hin zu Arztpraxen und gesundheitsnahen Nutzungen wird Arbeiten, Versorgung, Begegnung und Freizeit an einem zentralen Standort zusammengeführt.

Architektur & Raumkonzept

Eine klare und hochwertige Architektur verkörpert den modernen Zeitgeist. Großzügige, helle Flächen und eine offene Gestaltung schaffen ein urbanes Umfeld, das Austausch ermöglicht und zugleich Raum für Konzentration bietet.

Nachhaltigkeit & Ökologie

Wärmepumpentechnologie, eine Photovoltaikanlage auf dem Dach sowie ein begrüntes Dach sind fester Bestandteil des Konzepts und unterstützen ein zeitgemäßes, nachhaltiges Miteinander.

Lage & Erreichbarkeit

Zentral gelegen, schnell erreichbar über B8 und A3 sowie optimal angebunden an den öffentlichen Personennahverkehr. Parkmöglichkeiten direkt am Gebäude, eine Tiefgarage für ansässige Nutzer sowie eine große Anzahl an E-Ladestationen runden das Mobilitätskonzept ab.

Werden Sie Teil des MAIN COURTS

Anfragen und weitere Informationen unter:
info@g-k.group

HAUPTGEBÄUDE

Nutzung

Fläche

Terrasse (50 %)

Nutzfläche Gesamt

Erdgeschoss

Ladenfläche 1

573,20 m²

573,20​ m²

Ladenfläche 2

496,67 ​m²

496,67 ​m²

Ladenfläche 3

125,20​ m²

125,20​ m²

  1. Obergeschoss

Praxis 1

369,51​ m²

86,55 ​m²

412,78 m²​

Praxis 2

465,34​ m²

26,74 m²

478,71​ m²

Praxis 3

390,17​ m²

22,06​ m²

401,82 m²

  1. Obergeschoss

Büroeinheit 1

701,67​ m²

86,55 ​m²

744,95​ m²

Büroeinheit 2

390,17​ m²

22,06​ m²

401,20​ m²

  1. Obergeschoss

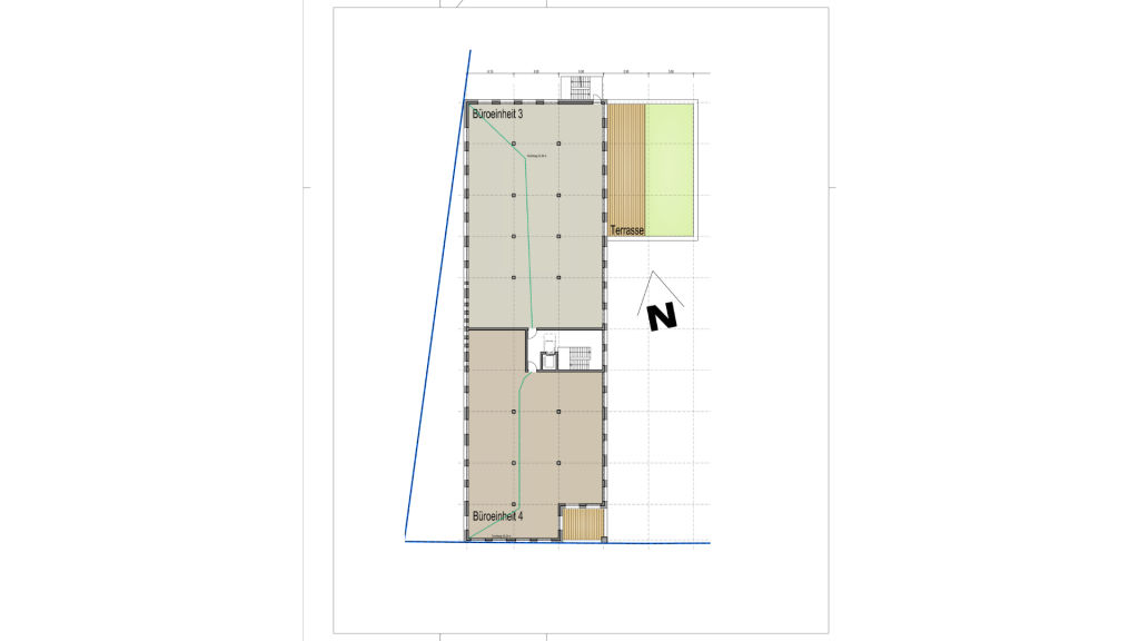
Büroeinheit 3

496,61​ m²

86,55​ m²

539,89 m²

Büroeinheit 4

390,17​ m²

22,06​ m²

401,20​ m²

FOODCOURT

Nutzung

Fläche

Terrasse (50 %)

Nutzfläche Gesamt

Erdgeschoss

Gastronomie

320,32​ m²

189,44 m²

415,04​ m²

  1. Obergeschoss

Büroflächen 5

287,25​ m²

76,49​ m²

325,50​ m²

Grundrisse

Gewerbegebäude Erdgeschoss
Gewerbegebäude 1. Obergeschoss
Gewerbegebäude 2. Obergeschoss
Gewerbegebäude 3. Obergeschoss
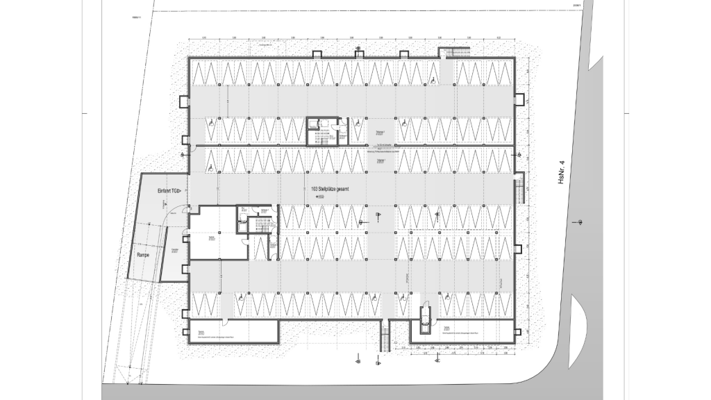
Untergeschoss